Rénovation d'une habitation 15400 MENET
14/03/2017
|
Avant/Après
 Avant
 Avant
 Avant
 Avant
 Les travaux
 Les travaux
 Les travaux
 Chantier terminé
 Chantier terminé
 Chantier terminé
 Chantier terminé
 Chantier terminé
 Chantier terminé
|
 |
2016
|
 |
Entre € et €
|
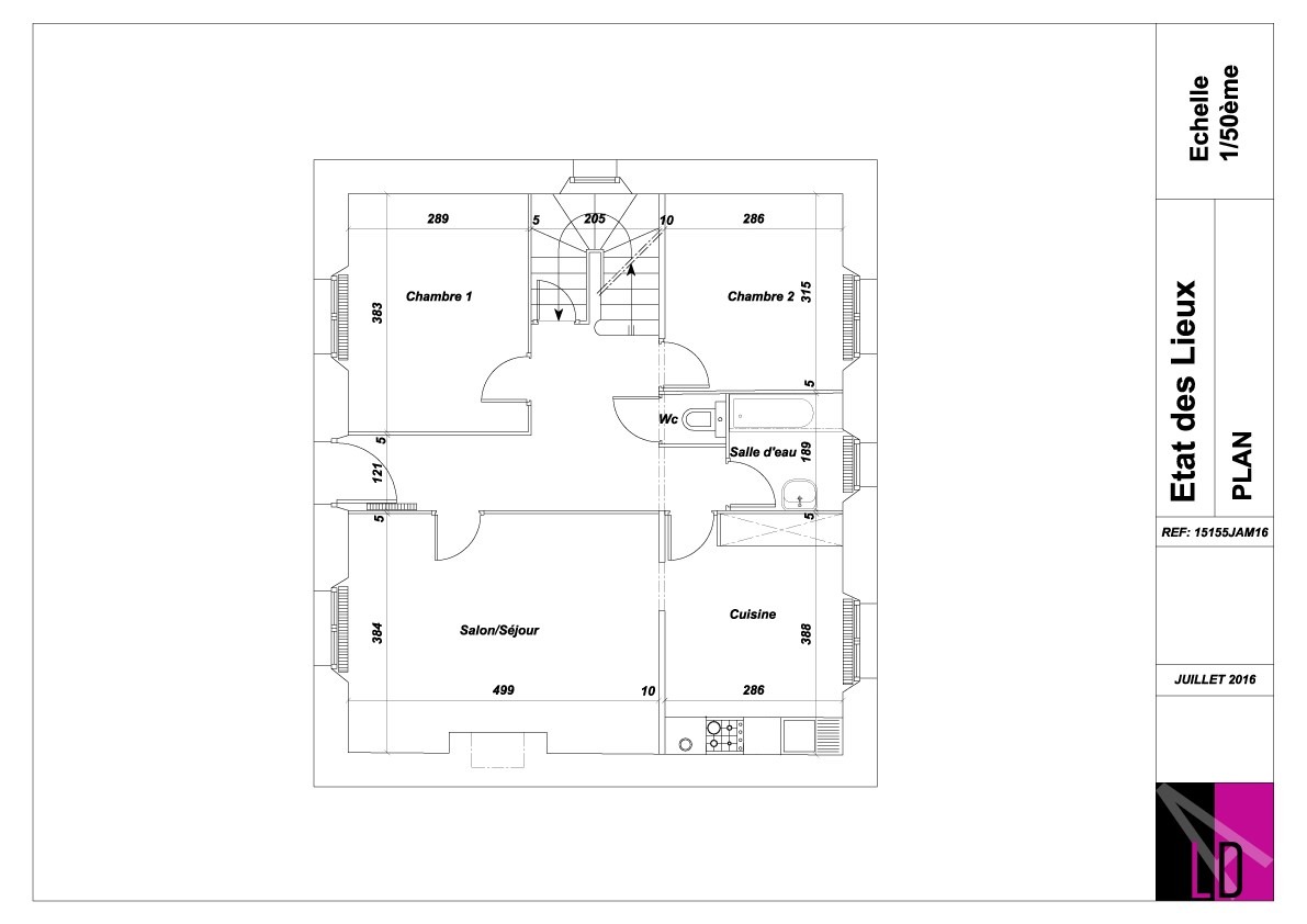
Croquis & Plans
|
|
Le Projet
|
 |
Démolition/Gros-oeuvre : Veronne Construction
Plâtrerie Iso Peinture : SARL ALBESSARD
Carrelage/Faïence : SARL ALBESSARD
Plomberie/Sanitaires/Chauffage : Ets MOREAU
Electricité : LABBELEC
Cuisiniste : Gil VERGNE
Serrurerie : François LOURS
|
|
Enregistrer
5